Unsere Produkte
Intelligente dezentrale Lüftungssysteme von EnerSearch Solar
NILS - ein Lüftungssystem von EnerSearch, das in ein Möbelstück eingearbeitet ist
NILS wird im Innenraum an die Außenwand montiert. Nach außen werden 2 Mal 160-170mm Durchmesser Bohrungen für die Außen- und Fortluft angebracht. Auf der Außenfassade werden über den Außengittern entsprechende Blenden angebracht.
Material:
Spanplatte beschichtet – z.B. Variante Mini Pearl mit 2mm ABS-Kanten
Farbe: Standard weiß – Farbvarianten möglich
Für besonders kleine Nischen ist ein Sondermaß möglich: H: 828mm B: 522mm T: 320mm
Bei Platzmangel - z.B. bei geringer Brüstungshöhe: möglich ohne Abdeckplatte und Reduzierung Sockel auf 16mm, wahlweise mehrere Geräte übereinander: Einsparung Sockel
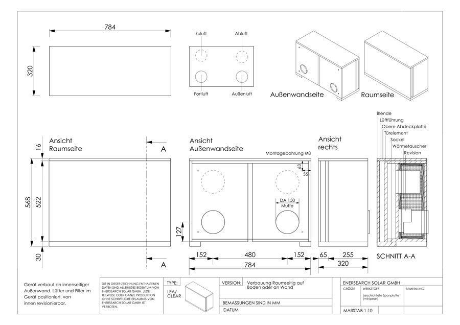
LEA - in ein Möbelstück eingearbeitet, entspricht der Version NILS - wird allerdings quer verbaut
LEA wird im Innenraum an die Außenwand montiert. Nach außen werden 2 Mal 160-170mm Durchmesser Bohrungen für die Außen- und Fortluft angebracht. Auf der Außenfassade werden über den Außengittern entsprechende Blenden angebracht.
Material:
Spanplatte beschichtet – z.B. Variante Mini Pearl mit 2mm ABS-Kanten
Farbe: Standard weiß – Farbvarianten möglich
Größe max.: H: 522mm B: 782mm T: 320mm Größe
Bei Platzmangel - z.B. bei geringer Brüstungshöhe: möglich ohne Abdeckplatte und Reduzierung Sockel auf 16mm, wahlweise mehrere Geräte übereinander: Einsparung Sockel
LINUS - ein Lüftungssystem von EnerSearch, das von außen auf die Außenwand montiert wird
LINUS wird danach von einem Wärmedämmverbundsystem (WDVS) umdämmt. Nach innen werden 2 Mal 160-170mm Durchmesser Bohrungen für die Zu- und Abluft angebracht. Auf der Außenfassade werden über den Außengittern entsprechende Blenden angebracht.
Montage:
Montage der Wärmetauscher sollte nach dem Einbau der Fenster erfolgen. Wärmetauscher, sowie seitliche Luftverteilerkästen, müssen ausreichend überdämmt werden. Aus Gründen der Wartung und Optik wird im Innenbereich eine revisionierbare Blende vor den Zu- und Abluftöffnungen empfohlen. s. konzeptionell dargestellt
Mögliche Größe: H: 720mm B: 460mm T: 130mm
JULE - ein Lüftungssystem von EnerSearch, das von außen auf die Außenwand montiert wird, entspricht der Version LINUS - wird allerdings quer verbaut
JULE wird danach von einem Wärmedämmverbundsystem (WDVS) umdämmt. Nach innen werden 2 Mal 160-170mm Durchmesser Bohrungen für die Zu- und Abluft angebracht. Auf der Außenfassade werden über den Außengittern entsprechende Blenden angebracht.
Montage:
Montage der Wärmetauscher sollte nach dem Einbau der Fenster erfolgen. Wärmetauscher, sowie seitliche Luftverteilerkästen, müssen ausreichend überdämmt werden. Aus Gründen der Wartung und Optik wird im Innenbereich eine revisionierbare Blende vor den Zu- und Abluftöffnungen empfohlen. s. konzeptionell dargestellt
Mögliche Größe: H: 460mm B: 720mm T: 130mm
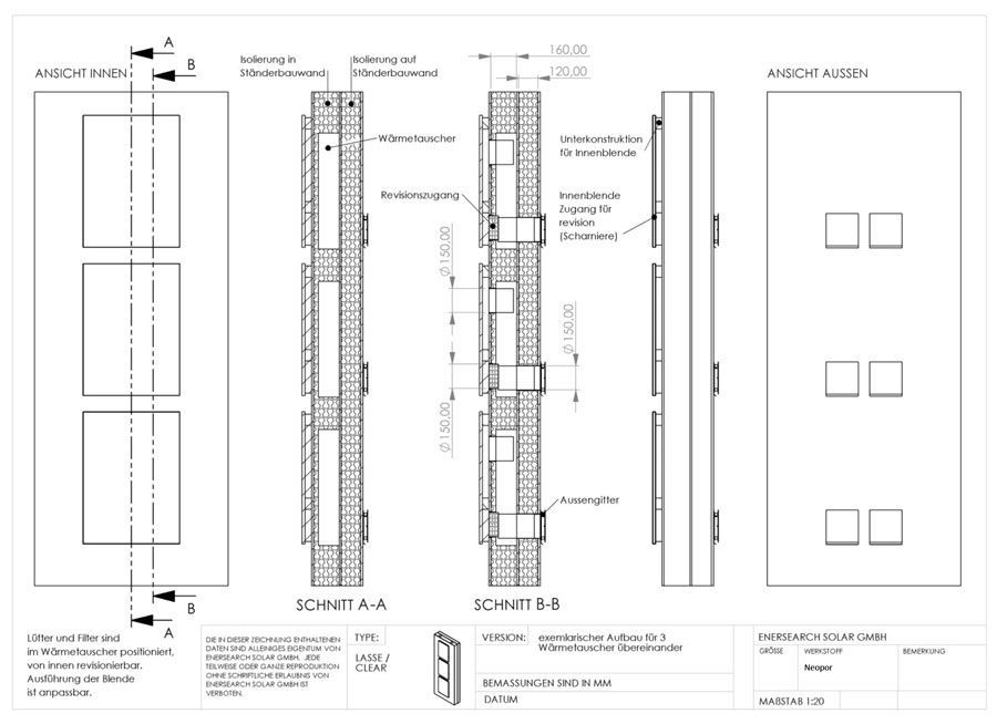
LASSE - ein Lüftungssystem von EnerSearch, das in eine Holzständerkonstruktion eingebaut wird
LASSE wird in der Dämmung zwischen zwei Sparren und zwischen die innere USB-Platte und die äußere USB-Platte verbaut. Nach außen werden 2 Mal 160mm Durchmesser Bohrungen für die Außen- und Fortluft angebracht. An der Außenfassade sind die beiden Außengitter mit jeweils einer Blende abgedeckt, bzw. durch ein durchgehendes Band, um die Optik zu verbessern, abgedeckt
Montage & Größe:
Aus Gründen der Wartung und Optik wird im Innenbereich eine revisionierbare Blende vor den Zu- und Abluftöffnungen empfohlen.
Mögliche Größe: H: 720mm B: 460mm T: 130mm
Denkmalschutz - hohe Anforderungen an die Installation von Lüftungssystemen
Hier besteht insbesondere das Problem, dass meist durch das gesamte Gebäude keine Rohr- und Kanalsysteme für die zentrale Lüftung in jeden einzelnen Raum gezogen werden können. Auch hat das Denkmalamt meist die Anforderung, weder von innen noch von außen eine Lüftungsöffnung sichtbar zu installieren.
EnerSearch ist im denkmalgeschützten Bereich Technologieführer, denn die Lüftungsöffnungen werden nahezu unsichtbar in die Fensterlaibungen (in die Fassade) oder in den Fensterrahmen integriert, um den Anforderungen der Denkmalschutzgesetze gerecht zu werden. Die Kreuzstromwärmetauscher selbst werden verdeckt von Innen in der Innendämmung angebracht oder in ein Möbelstück integriert. Die Altbaufassade wird durch die EnerSearch Systeme somit nicht verändert.
Größe:
Mögliche Größe: H: 720mm B: 460mm T: 130-330mm
BASIC Wohnbau - vom Öffnen der Fenster unabhängige Lüftung
Durch die dichte Außenhülle findet nur noch ein minimaler Luftaustausch statt und die in den Innenräumen vorhandene Feuchtigkeit wird nicht mehr ausgetragen. Schimmelbildung, Feuchteschäden und eine mit Schadstoffen belastete Innenluft sind die Folgen.
EnerSearch bietet eine einfache, wartungsarme und bedienungsfreundliche, aber gleichwohl eine leistungsfähige und sehr preisgünstige Lüftungsanlage an. Diese Lüftungsanlage ist mit einem Kreuzstromwärmetauscher zur Wärmerückgewinnung ausgestattet und wird auf der Außenwand oberflächenbündig in das Wärmedämmverbundsystem integriert. Die Wärmerückgewinnung beträgt bis zu 95%.
Größe:
Mögliche Größe: H: 720mm B: 460mm T: 130-330mm
Wandöffnungen (Bohrung): 110mm















